Terug naar overzicht »

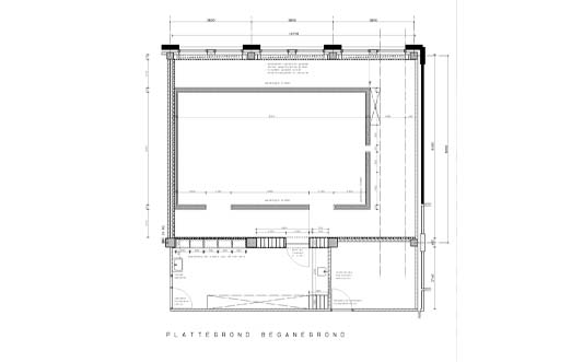
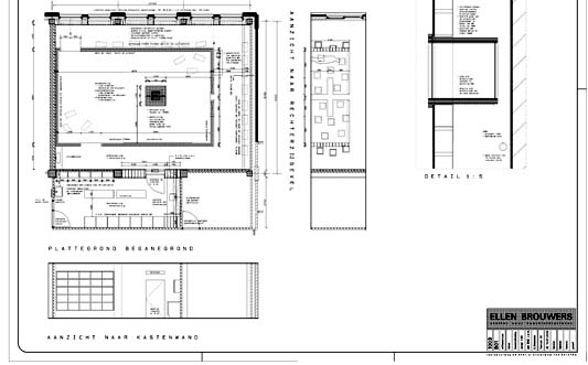
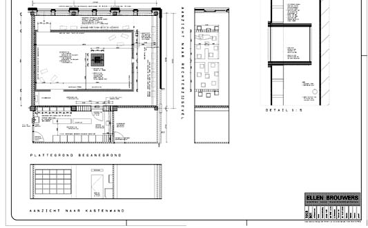
BEZINNING RUIMTE Dendron College Horst

"Trans"

2004 Ellen Brouwers Oisterwijk

Opdrachtgever
Dendron College Horst Limburg Middelbaar Onderwijs

Ontwerp
Realisatie bezinningsruimte

Materiaal/Technieken
Diversen

Afmetingen
10,00 M x 15,00 M